Negozio in vendita

Roma, Via Cola di Rienzo - Prati Cola Di Rienzo
€ 2.000.000
1 locale 1 locale
83 Mq 83 Mq
1 bagno 1 bagno

Negozio in vendita

Roma, Via Cola di Rienzo - Prati Cola Di Rienzo

Descrizione annuncio

PRATI – Locale commerciale in una delle vie più richieste di Roma

Nel quartiere Prati, tra le zone commerciali più richieste di Roma, proponiamo in vendita un negozio situato su Via Cola di Rienzo, rinomata per la presenza di boutique di lusso, brand internazionali e un contesto urbano di assoluto livello.

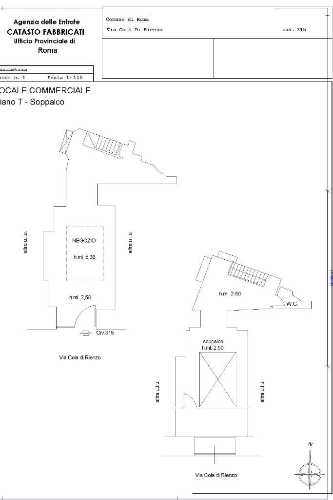
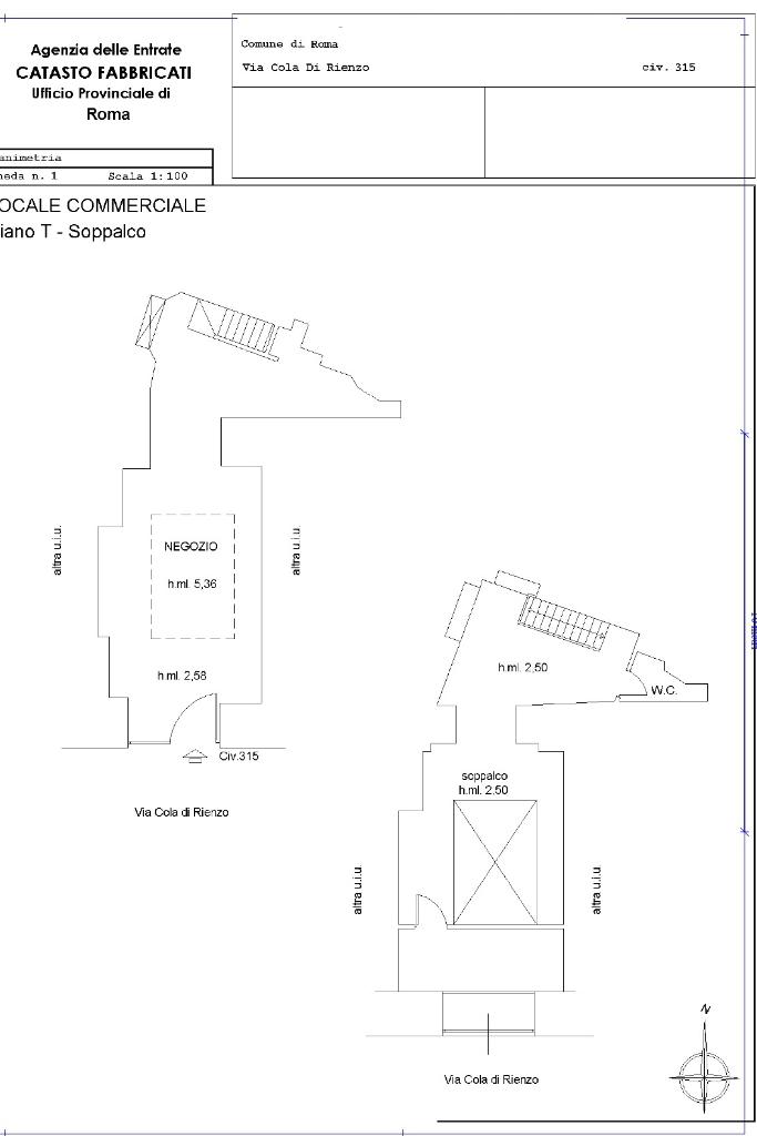
L’immobile si sviluppa su una superficie complessiva di circa 83 mq, vetrina unica su fronte strada con 48 mq al piano terra e 35 mq di elegante soppalco con annesso servizio igienico , offrendo ambienti raffinati, funzionali e altamente versatili. La distribuzione degli spazi si presta perfettamente a ospitare attività retail di fascia alta, showroom di rappresentanza, atelier, studi professionali o concept store esclusivi.

La posizione, nel cuore del quartiere Prati e nelle immediate vicinanze del Vaticano, garantisce visibilità internazionale, elevato flusso pedonale qualificato e una clientela selezionata, composta da residenti ad alto potere d’acquisto e turismo internazionale di fascia medio-alta.

Opportunità rara nel panorama immobiliare romano, ideale per investitori e brand alla ricerca di una location iconica, capace di coniugare prestigio, solidità patrimoniale e forte attrattività commerciale nel tempo.

Sito in Via Cola Di Rienzo.

PREZZO EURO 2.000.000,00

INFO TECNOCASA CIRCONVALLAZIONE CORNELIA 31

06/87979065

Mostra tutto

Nelle vicinanze

Trasporto pubblico Trasporto pubblico
Ottaviano
Ottaviano
310 m
Lepanto
Lepanto
770 m
Città del Vaticano
Città del Vaticano
950 m
stazione di Roma San Pietro
stazione di Roma San Pietro
1,3 Km
Risorgimento/S. Pietro
Risorgimento/S. Pietro
100 m
Ricariche auto elettriche Ricariche auto elettriche
Garage Properzio | EnelX
180 m
Eneldrive Risorgimento
220 m
Parcheggio Mercato Trionfale - Musei Vaticani
600 m
Eneldrive Cola di Rienzo
830 m
Roma Mazzini | EnelX
1,1 Km
Scuole Scuole
Scuole
130 m
Berlitz
400 m
LUMSA
480 m
Scuola Media Statale Dante Alighieri
640 m
Scuola dell'infanzia ed Elementare Adelaide Cairoli
640 m
Farmacia Farmacia
Farmacia
50 m
Farmacia Germanico
140 m
Farmacia Vaticana
330 m
Farmacia Giulio Cesare
340 m
Farmacia Fabio Massimo
380 m
Ospedali Ospedali
Casa di Cura Santa Famiglia
540 m
Ospedale Santo Spirito in Sassia
680 m
Pronto Soccorso Ospedale "Santo Spirito in Sassia"
720 m
Pronto Soccorso Ospedale Oftalmico
860 m
Ospedale Oftalmico
940 m
Supermercati Supermercati
Minimarket
230 m
in Coop
260 m
Supermercato Vaticano
320 m
Pam Local
350 m
Pam Express
360 m
Negozi Negozi
Sisley
0 m
Fellini
50 m
Fellini Lady
70 m
Desigual
70 m
MiniMarket
80 m
Bar Bar
Bar L'ottagono
100 m
Bar delle Grazie
240 m
Enoteca del Frate
250 m
Cafe' dei Desideri
310 m
Ted
330 m
Ristoranti Ristoranti
Trattoria Vaticano Giggi
40 m
Passaguai
80 m
La Zanzara
90 m
La Soffitta Renovatio
90 m
Taverna Varrone
90 m
Mostra tutto

Caratteristiche

Rif.:
61178998
Piano:
Terra di 5
Totale piani:
5
Condizionamento:
Autonomo
Ascensore:
No
Riscaldamento:
Assente
Mostra tutto
Prezzo Prezzo
€ 2.000.000
Rata mutuo Rata mutuo
€ 9.478 / mese
Proponi il tuo prezzoProponi il tuo prezzo

Altre caratteristiche

Classe Energetica

G
G
G
G
G
G
G
G
G
EP globale non rinnovabile:
180.00 kW h/m² anno
EP globale rinnovabile:
180.00 kW h/m² anno
Anno di costruzione:
1900
Riscaldamento:
Assente

Ti interessa visionare l'immobile?

Fissa un appuntamento  Fissa un appuntamento

Richiedi informazioni

Clicca su Leggi per aprire l'informativa
* Questi campi sono obbligatori

Calcola il tuo mutuo

Semplice e senza impegno
Anticipo

( % )
Mutuo

( % )

pochi semplici passi

inserisci i tuoi dati
Questionario completato
Grazie per aver richiesto un appuntamento senza impegno con un nostro Consulente del Credito e Assicurativo.

Hai inserito correttamente tutti i dati necessari e a breve riceverai una e-mail con un link da convalidare per inviare i tuoi dati.
Affiliato
Immobili Commerciali Boccea Srl
Circ. Cornelia, 31 00165 Roma (RM)

Il nostro staff


  • Federico Cecere
    Responsabile

  • Lorenzo Rocchetti
    Affiliato
Circ. Cornelia, 31 00165 Roma (RM)
Zona: Aurelio- Boccea - Balduina- Prati-Monte Mario- Torrevecchia
Mostra su mappa
Affiliato
Immobili Commerciali Boccea Srl
Circ. Cornelia, 31 00165 Roma (RM)

2026 Tecnocasa Franchising S.p.A. - P. IVA 08365160152 - Via Monte Bianco 60/A 20089 Rozzano (MI). Ogni agenzia ha un proprio titolare ed è autonoma. Privacy policy | Policy utilizzo | Cookie policy