Negozio in vendita

Roma, Via Diego Tajani - Aurelia
€ 349.000
1 locale 1 locale
539 Mq 539 Mq
1 bagno 1 bagno

Negozio in vendita

Roma, Via Diego Tajani - Aurelia

Descrizione annuncio

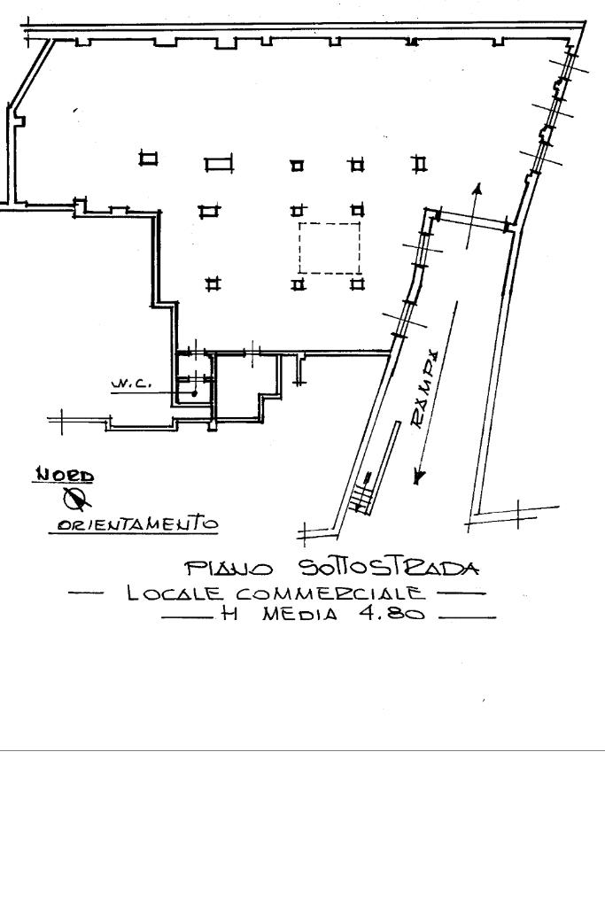
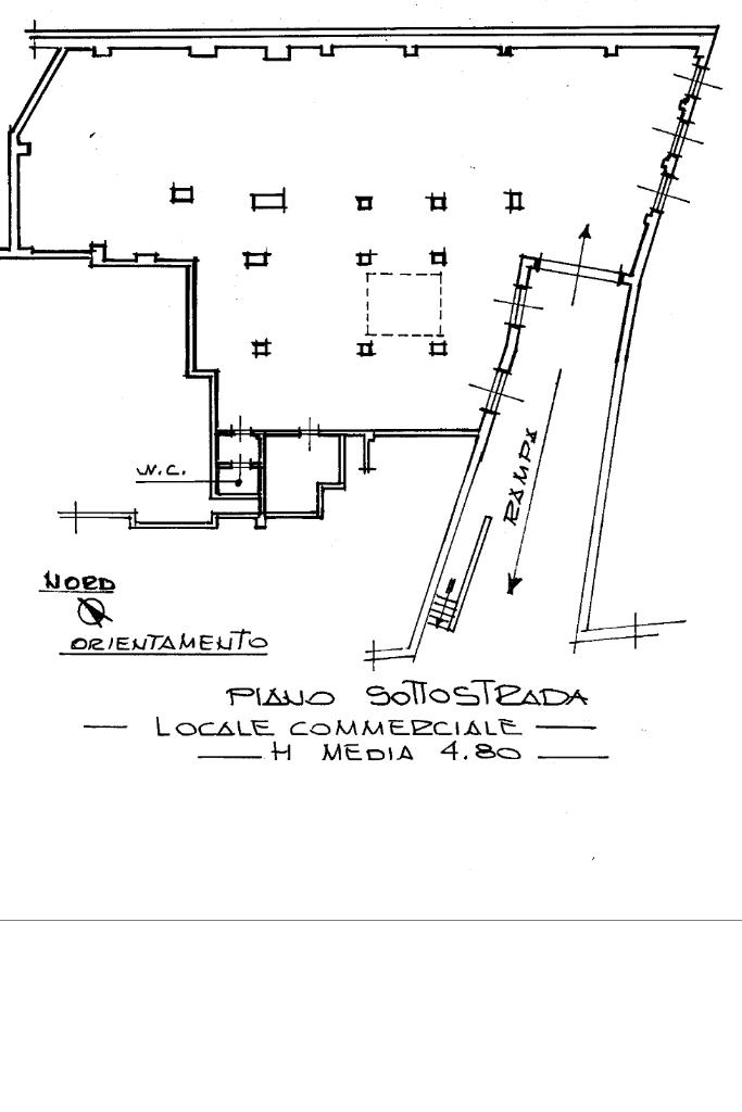
AURELIA – LOCALE COMMERCIALE DI AMPIA METRATURA

Agenzia Affiliata Tecnocasa “Immobili Commerciali Boccea” propone in vendita in Via Diego Tajani, zona strategica di Roma dato il suo collegamento con le arterie principali di viabilità, un locale commerciale di 539 mq con un’altezza interna media di 4,80 mt. L’immobile si presenta come un unico, grande ambiente open space, versatile e facilmente adattabile a diverse destinazioni d’uso.

Dispone di rampa di accesso esclusiva, che garantisce praticità per carico e scarico merci o accesso veicolare diretto, e di un servizio igienico interno.

La posizione, in una traversa tranquilla ma ben collegata, rende l’immobile ideale per chi cerca spazi ampi e facilità di accesso.

Sito in Via Diego Tajani.

Prezzo Euro 349.000,00

Info Tecnocasa Circonvallazione Cornelia n. 31

06/87979065

Mostra tutto

Nelle vicinanze

Trasporto pubblico Trasporto pubblico
Cornelia
Cornelia
1,4 Km
Battistini
Battistini
1,6 Km
stazione di Roma Aurelia
stazione di Roma Aurelia
2,0 Km
Valle Aurelia
Valle Aurelia
2,6 Km
Casaletto
Casaletto
2,7 Km
Ricariche auto elettriche Ricariche auto elettriche
Crowne Plaza Rome-St. Peter's
970 m
The Church Palace
1,0 Km
Eneldrive Battistini
1,6 Km
Roma Gregorio VII | EnelX
2,0 Km
EnelX EVA+ Distributore IP Matic La Pisana
2,3 Km
Scuole Scuole
Pontificio Collegio Internazionale Maria Mater Ecclesiae
420 m
Scuola Germanica Roma
1,1 Km
Scuole
1,2 Km
ITI Albert Einstein
1,8 Km
IIS Einstein-Bachelet
1,9 Km
Farmacia Farmacia
Pulker Farma
1,4 Km
Farmacia
1,5 Km
Farmacia Colle Aurelio
1,8 Km
Farmacia la fenicia
1,8 Km
Farmacia Crescimanno
2,5 Km
Ospedali Ospedali
Clinica Villa Benedetta
1,3 Km
Aurelia Hospital
1,4 Km
San Raffaele Pisana
1,6 Km
IDI (Istituto Dermopatico dell'Immacolata)
1,7 Km
San Carlo di Nancy
2,1 Km
Supermercati Supermercati
Carrefour Market
340 m
CTS
560 m
Panorama
1,1 Km
InGrande
1,2 Km
Vivo Supermercato
1,2 Km
Negozi Negozi
Mini Market
1,2 Km
Pascucci
1,5 Km
Old England
1,5 Km
Family Factor
2,1 Km
Diffusione Tessile
2,2 Km
Bar Bar
Miani
860 m
Maurizio
920 m
Dea & Dea Bar
2,2 Km
Bar
2,3 Km
Ghisbi Bar
2,8 Km
Ristoranti Ristoranti
Benvenetto
310 m
IL POSTIGLIONE
360 m
Ristoranti
460 m
Al giardino d'Abruzzo
770 m
Etnico Peruviano
860 m
Mostra tutto

Caratteristiche

Rif.:
61126111
Piano:
-1 di 1
Condizionamento:
Assente
Ascensore:
No
Riscaldamento:
Assente
Libero:
Mostra tutto
Prezzo Prezzo
€ 349.000
Rata mutuo Rata mutuo
€ 1.599 / mese
Proponi il tuo prezzoProponi il tuo prezzo

Classe Energetica

G
G
G
G
G
G
G
G
G
EP globale non rinnovabile:
180.00 kW h/m² anno
EP globale rinnovabile:
180.00 kW h/m² anno
Anno di costruzione:
1960
Riscaldamento:
Assente

Ti interessa visionare l'immobile?

Fissa un appuntamento  Fissa un appuntamento

Richiedi informazioni

* Questi campi sono obbligatori

Calcola il tuo mutuo

Semplice e senza impegno
Anticipo

( % )
Mutuo

( % )

pochi semplici passi

inserisci i tuoi dati
Questionario completato
Grazie per aver richiesto un appuntamento senza impegno con un nostro Consulente del Credito e Assicurativo.

Hai inserito correttamente tutti i dati necessari e a breve riceverai una e-mail con un link da convalidare per inviare i tuoi dati.
Affiliato
Immobili Commerciali Boccea Srl
Circ. Cornelia, 31 00165 Roma (RM)

Il nostro staff


  • Denise Fabriani
    Affiliata

  • Federico Cecere
    Responsabile

  • Lorenzo Rocchetti
    Affiliato
Circ. Cornelia, 31 00165 Roma (RM)
Zona: Aurelio- Boccea - Balduina- Prati-Monte Mario- Torrevecchia
Mostra su mappa
Affiliato
Immobili Commerciali Boccea Srl
Circ. Cornelia, 31 00165 Roma (RM)

2025 Tecnocasa Franchising S.p.A. - P. IVA 08365160152 - Via Monte Bianco 60/A 20089 Rozzano (MI). Ogni agenzia ha un proprio titolare ed è autonoma. Privacy policy | Policy utilizzo | Cookie policy