Negozio in affitto

Roma, Via Gregorio VII - Gregorio VII
€ 4.500 / mese
1 locale 1 locale
120 Mq 120 Mq
1 bagno 1 bagno

Negozio in affitto

Roma, Via Gregorio VII - Gregorio VII

Descrizione annuncio

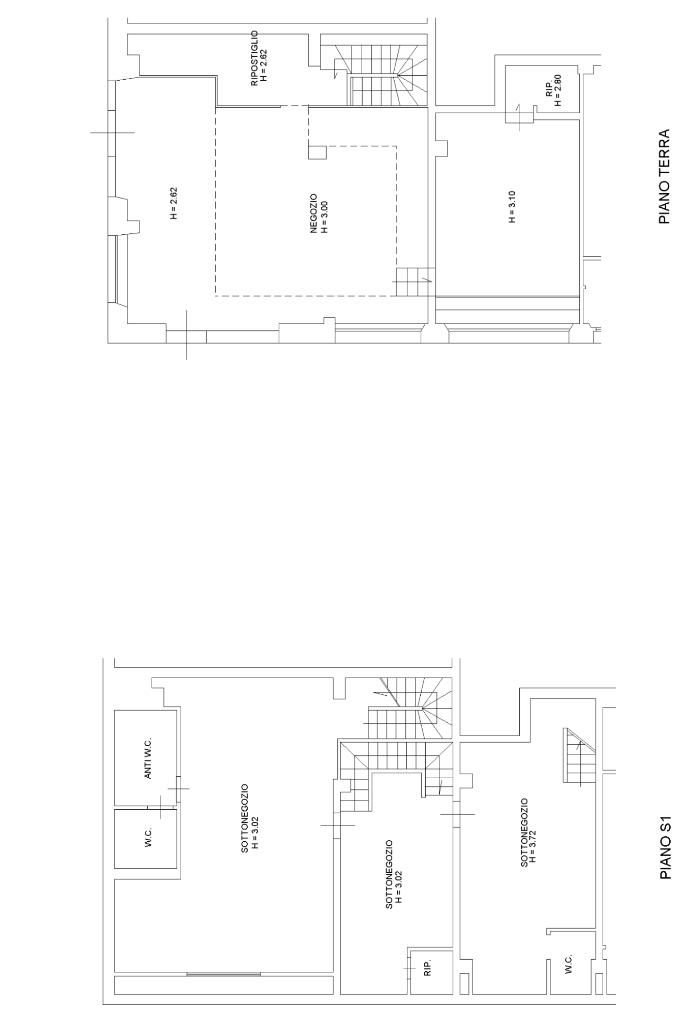
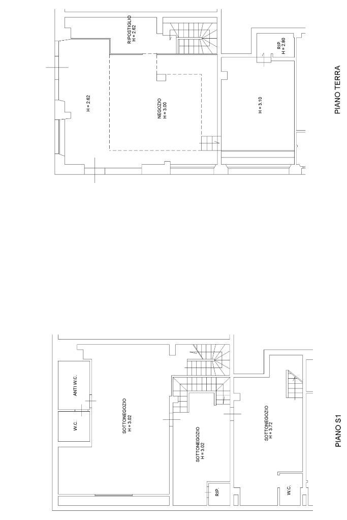
GREGORIO VII – NEGOZIO ANGOLARE

L’Agenzia Affiliato Tecnocasa “Immobili Commerciali Boccea” propone in locazione, in Via Gregorio VII, ad angolo con Via Cardinale Tripepi, un locale commerciale con quattro vetrine su strada che garantiscono ampia visibilità.
L’immobile è composto internamente da un ampio ambiente principale al piano terra con ripostiglio e da un sotto negozio suddiviso in doppio magazzino, antibagno, bagno e ulteriore ripostiglio.

Tra le immagini sono presenti alcune elaborazioni realizzate con l’intelligenza artificiale, inserite al solo scopo di illustrare il potenziale del locale e il possibile risultato finale .

Sito in Via Gregorio VII 290.

Prezzo richiesto Euro 4.500,00 mensili.

Info: Tecnocasa Circonvallazione Cornelia n. 31

06/87979065

Mostra tutto

Nelle vicinanze

Trasporto pubblico Trasporto pubblico
Baldo degli Ubaldi
Baldo degli Ubaldi
640 m
Valle Aurelia
Valle Aurelia
790 m
Valle Aurelia
Valle Aurelia
820 m
Città del Vaticano
Città del Vaticano
1,1 Km
Risorgimento/S. Pietro
Risorgimento/S. Pietro
1,9 Km
Ricariche auto elettriche Ricariche auto elettriche
Roma Gregorio VII | EnelX
210 m
The Church Palace
1,2 Km
Eneldrive Stazione Roma S.Pietro
1,3 Km
Crowne Plaza Rome-St. Peter's
1,4 Km
Parcheggio Mercato Trionfale - Musei Vaticani
1,8 Km
Scuole Scuole
Pontificio Seminario Romano Minore
780 m
Istituto Pontificio Sant'Apollinare
800 m
Istituto di Istruzione Superiore "Domizia Lucilla" - Sez. Agraria
1,1 Km
Scuola Germanica Roma
1,2 Km
Istituto Professionale per l'Agricoltura Federico Delpino
1,2 Km
Farmacia Farmacia
Farmacia Colle Aurelio
620 m
Farmacia
830 m
Farmacia Cipro
1,1 Km
LaLiFarm
1,3 Km
Beam
1,3 Km
Ospedali Ospedali
San Carlo di Nancy
200 m
AISPS Roma - Centro di Sessuologia
650 m
IDI (Istituto Dermopatico dell'Immacolata)
970 m
Clinica Villa Benedetta
1,3 Km
Ospedale Oftalmico
1,5 Km
Supermercati Supermercati
Carrefour Market
230 m
Elite
320 m
Tuodì
340 m
IN's mercato
490 m
Punto Simply
530 m
Negozi Negozi
Old England
840 m
Mini Market
1,1 Km
Negozi
1,1 Km
Pascucci
1,3 Km
Supermarket San Pietro
1,4 Km
Bar Bar
Bar Roma
1,0 Km
Old Trafford
1,2 Km
Milk and Coffee
1,3 Km
Lu Night Bistrò
1,7 Km
Bar
1,7 Km
Ristoranti Ristoranti
Passioni di Pasta all'Uovo
80 m
La Forchetta
120 m
Le Vele
170 m
Sikelia Restaurant
260 m
Fuoricorso
350 m
Mostra tutto

Caratteristiche

Rif.:
61188691
Piano:
Terra di 5
Totale piani:
5
Condizionamento:
Autonomo
Ascensore:
No
Riscaldamento:
Assente
Mostra tutto
Prezzo Prezzo
€ 4.500 / mese

Altre caratteristiche

Descrizione dei locali
Bagno Cieco

Classe Energetica

G
G
G
G
G
G
G
G
G
EP globale non rinnovabile:
180.00 kW h/m² anno
EP globale rinnovabile:
180.00 kW h/m² anno
Anno di costruzione:
1960
Riscaldamento:
Assente

Ti interessa visionare l'immobile?

Fissa un appuntamento  Fissa un appuntamento

Richiedi informazioni

Clicca su Leggi per aprire l'informativa
* Questi campi sono obbligatori
Affiliato
Immobili Commerciali Boccea Srl
Circ. Cornelia, 31 00165 Roma (RM)

Il nostro staff


  • Federico Cecere
    Responsabile

  • Lorenzo Rocchetti
    Affiliato
Circ. Cornelia, 31 00165 Roma (RM)
Zona: Aurelio- Boccea - Balduina- Prati-Monte Mario- Torrevecchia
Mostra su mappa
Affiliato
Immobili Commerciali Boccea Srl
Circ. Cornelia, 31 00165 Roma (RM)

2026 Tecnocasa Franchising S.p.A. - P. IVA 08365160152 - Via Monte Bianco 60/A 20089 Rozzano (MI). Ogni agenzia ha un proprio titolare ed è autonoma. Privacy policy | Policy utilizzo | Cookie policy