Laboratorio in vendita

Roma, Via Suor Celestina Donati - Pineta Sacchetti
€ 89.000
1 locale 1 locale
100 Mq 100 Mq
1 bagno 1 bagno

Laboratorio in vendita

Roma, Via Suor Celestina Donati - Pineta Sacchetti

Descrizione annuncio

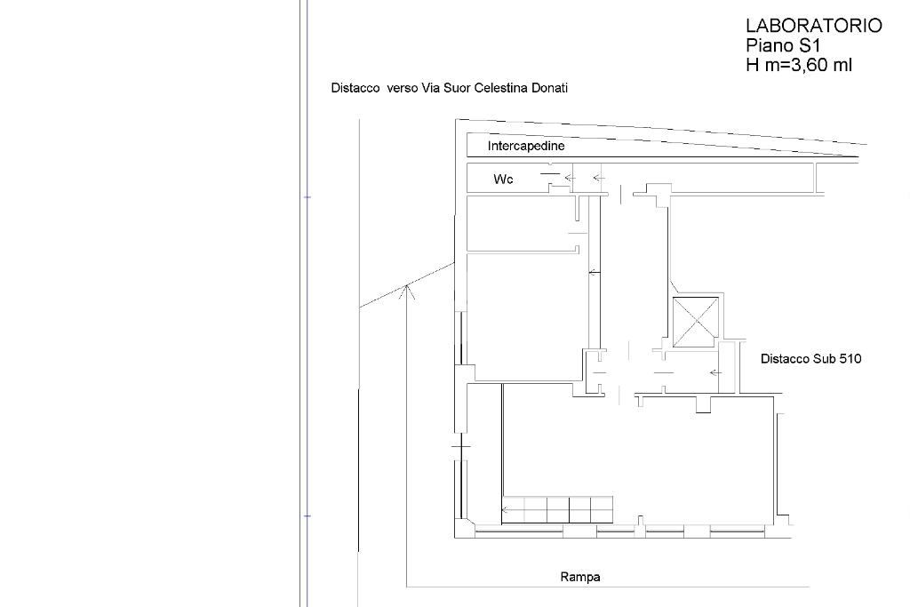
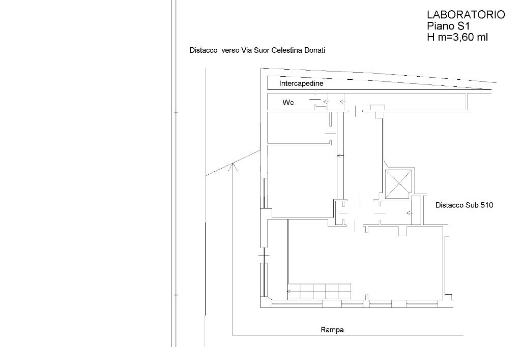
PINETA SACCHETTI – LABORATORIO

Agenzia Affiliato Tecnocasa “Immobili Commerciali Boccea” propone in vendita un laboratorio di 100 mq circa con accesso su rampa condominiale, a pochi metri da Via Pineta Sacchetti e Via Mattia Battistini, in posizione strategica. L’immobile al suo interno si divide in più ambienti con servizio igienico e la possibilità di essere accorpato al locale adiacente di 90 mq circa.

Sito in Via Suor Celestina Donati 137.

Prezzo richiesto Euro 89.000,00.

Info: Tecnocasa Circonvallazione Cornelia n. 31

06/87979065

Mostra tutto

Nelle vicinanze

Trasporto pubblico Trasporto pubblico
Battistini
Battistini
2,1 Km
Cornelia
Cornelia
2,6 Km
Gemelli
Gemelli
590 m
stazione di Roma Balduina
stazione di Roma Balduina
1,3 Km
Battistini/Suor Celestina Donati
Battistini/Suor Celestina Donati
130 m
Ricariche auto elettriche Ricariche auto elettriche
Axpo - Stazio
1,9 Km
Rome Cavalieri, A Waldorf Astoria Resort
2,1 Km
Eneldrive Battistini
2,1 Km
Roma Clodio | EnelX
2,7 Km
Scuole Scuole
Scuole
50 m
Taggia
730 m
Istituto Professionale Stendhal
850 m
Scuola Media Statale Paolo Stefanelli - sede centrale
1,2 Km
Università Cattolica del Sacro Cuore
1,3 Km
Farmacia Farmacia
Farmacia Colapinto
330 m
Farmacia Pineta Sacchetti
370 m
Farmacia Gemelli
690 m
Parafarmacia
840 m
Farmacia
880 m
Ospedali Ospedali
Ospedale Cristo Re
660 m
Pronto Soccorso Ospedale "Cristo Re"
670 m
Ospedali
710 m
Complesso Integrato Columbus
750 m
Hospice Villa Speranza
890 m
Supermercati Supermercati
Conad
170 m
PIM
270 m
Carrefour Market
460 m
Alta
810 m
Tuodì
890 m
Negozi Negozi
Oviesse
620 m
Mini Market
690 m
CRAI
1,1 Km
Negozi
1,2 Km
Micros
1,2 Km
Bar Bar
Caffè Van Gogh
240 m
Bar Centodolci
300 m
GM Bar
410 m
dello Studente
1,2 Km
Giglio
1,2 Km
Ristoranti Ristoranti
Ponypizza Pineta Sacchetti
300 m
Taverna Sacchetti
320 m
Ferro Officina del Gusto
370 m
Gaia Bio
390 m
Happy Hours
930 m
Mostra tutto

Caratteristiche

Rif.:
61129476
Piano:
-1 di 4 (Piano seminterrato)
Condizionamento:
Autonomo
Ascensore:
No
Riscaldamento:
Assente
Libero:
Mostra tutto
Prezzo Prezzo
€ 89.000
Rata mutuo Rata mutuo
€ 420 / mese
Proponi il tuo prezzoProponi il tuo prezzo

Altre caratteristiche

Descrizione dei locali
Bagno Con Finestra

Classe Energetica

G
G
G
G
G
G
G
G
G
EP globale non rinnovabile:
180.00 kW h/m² anno
EP globale rinnovabile:
180.00 kW h/m² anno
Anno di costruzione:
1960
Riscaldamento:
Assente

Ti interessa visionare l'immobile?

Fissa un appuntamento  Fissa un appuntamento

Richiedi informazioni

Clicca su Leggi per aprire l'informativa
* Questi campi sono obbligatori

Calcola il tuo mutuo

Semplice e senza impegno
Anticipo

( % )
Mutuo

( % )

pochi semplici passi

inserisci i tuoi dati
Questionario completato
Grazie per aver richiesto un appuntamento senza impegno con un nostro Consulente del Credito e Assicurativo.

Hai inserito correttamente tutti i dati necessari e a breve riceverai una e-mail con un link da convalidare per inviare i tuoi dati.
Affiliato
Immobili Commerciali Boccea Srl
Circ. Cornelia, 31 00165 Roma (RM)

Il nostro staff


  • Denise Fabriani
    Affiliata

  • Federico Cecere
    Responsabile

  • Lorenzo Rocchetti
    Affiliato
Circ. Cornelia, 31 00165 Roma (RM)
Zona: Aurelio- Boccea - Balduina- Prati-Monte Mario- Torrevecchia
Mostra su mappa
Affiliato
Immobili Commerciali Boccea Srl
Circ. Cornelia, 31 00165 Roma (RM)

2025 Tecnocasa Franchising S.p.A. - P. IVA 08365160152 - Via Monte Bianco 60/A 20089 Rozzano (MI). Ogni agenzia ha un proprio titolare ed è autonoma. Privacy policy | Policy utilizzo | Cookie policy