Attività in vendita

Roma, Via dell'Acquedotto Paolo - Millesimo
€ 42.000
1 locale 1 locale
100 Mq 100 Mq
1 bagno 1 bagno

Attività in vendita

Roma, Via dell'Acquedotto Paolo - Millesimo

Descrizione annuncio

TORREVECCHIA - ATTIVITA’ DI PIZZERIA DA ASPORTO

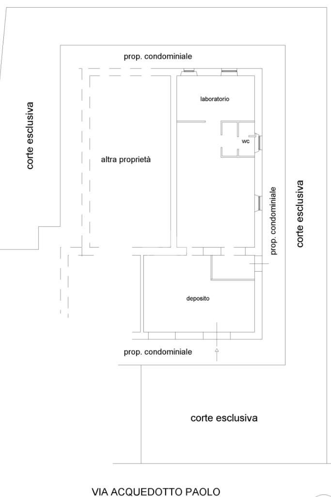
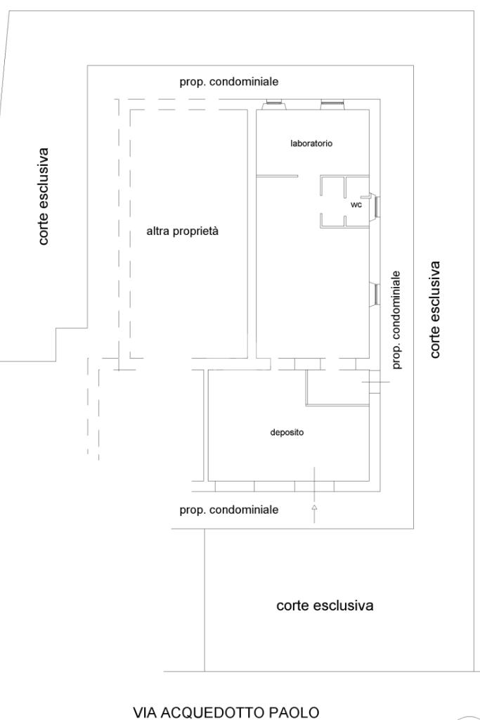
Agenzia Affiliato Tecnocasa “Immobili Commerciali Boccea” propone in vendita attività di pizzeria da asporto, sita in Via dell’Acquedotto Paolo, negozio posto al piano terra di 100 mq circa, con due vetrine fronte strada, composto internamente da due ambienti, laboratorio di cucina e servizio igienico.

Stigliatura completa.

L’immobile è dotato di canna fumaria.

Sito in Via Dell’Acquedotto Paolo.

Prezzo Euro 42.000,00

Info Tecnocasa Circonvallazione Cornelia n. 31

06/87979065

Mostra tutto

Nelle vicinanze

Trasporto pubblico Trasporto pubblico
stazione di Roma Monte Mario
stazione di Roma Monte Mario
530 m
Gemelli
Gemelli
810 m
Torrevecchia/Bellingeri
Torrevecchia/Bellingeri
200 m
Torrevecchia/Campo Ligure
Torrevecchia/Campo Ligure
250 m
Ricariche auto elettriche Ricariche auto elettriche
Axpo - Stazio
2,2 Km
Rome Cavalieri, A Waldorf Astoria Resort
2,6 Km
Scuole Scuole
Scuola Media Statale Paolo Stefanelli - sede centrale
160 m
Università Cattolica del Sacro Cuore
380 m
Scuole
400 m
Scuola Materna Leonardo Bianchi
400 m
Taggia
480 m
Farmacia Farmacia
Farmacia
350 m
Farmacia Padre Pio
680 m
Farmacia Gemelli
690 m
Parafarmacia
710 m
Farmacia Pineta Sacchetti
1,0 Km
Ospedali Ospedali
Hospice Villa Speranza
440 m
Policlinico Universitario Agostino Gemelli
580 m
Ospedali
880 m
Complesso Integrato Columbus
1,0 Km
Presidio Ospedaliero San Filippo Neri
1,7 Km
Supermercati Supermercati
IN's
160 m
Tuodì
310 m
Todis
480 m
Carrefour
530 m
Agorà Supermercati
540 m
Negozi Negozi
Mino jeans
200 m
L'idea
320 m
CRAI
370 m
Oviesse
380 m
Negozi
440 m
Bar Bar
Lory
190 m
Truzzi
190 m
Bar
200 m
Giglio
240 m
dello Studente
370 m
Ristoranti Ristoranti
L'Archetto
280 m
Lo Scalino
290 m
cinapoli
420 m
La Molisanella
440 m
Sole
450 m
Mostra tutto

Caratteristiche

Rif.:
61127507
Piano:
Terra di 3
Totale piani:
3
Condizionamento:
Autonomo
Ascensore:
No
Riscaldamento:
Assente
Mostra tutto
Prezzo Prezzo
€ 42.000
Rata mutuo Rata mutuo
€ 198 / mese
Proponi il tuo prezzoProponi il tuo prezzo

Classe Energetica

G
G
G
G
G
G
G
G
G
EP globale non rinnovabile:
180.00 kW h/m² anno
EP globale rinnovabile:
180.00 kW h/m² anno
Anno di costruzione:
1960
Riscaldamento:
Assente

Ti interessa visionare l'immobile?

Fissa un appuntamento  Fissa un appuntamento

Richiedi informazioni

Clicca su Leggi per aprire l'informativa
* Questi campi sono obbligatori

Calcola il tuo mutuo

Semplice e senza impegno
Anticipo

( % )
Mutuo

( % )

pochi semplici passi

inserisci i tuoi dati
Questionario completato
Grazie per aver richiesto un appuntamento senza impegno con un nostro Consulente del Credito e Assicurativo.

Hai inserito correttamente tutti i dati necessari e a breve riceverai una e-mail con un link da convalidare per inviare i tuoi dati.
Affiliato
Immobili Commerciali Boccea Srl
Circ. Cornelia, 31 00165 Roma (RM)

Il nostro staff


  • Denise Fabriani
    Affiliata

  • Federico Cecere
    Responsabile

  • Lorenzo Rocchetti
    Affiliato
Circ. Cornelia, 31 00165 Roma (RM)
Zona: Aurelio- Boccea - Balduina- Prati-Monte Mario- Torrevecchia
Mostra su mappa
Affiliato
Immobili Commerciali Boccea Srl
Circ. Cornelia, 31 00165 Roma (RM)

2026 Tecnocasa Franchising S.p.A. - P. IVA 08365160152 - Via Monte Bianco 60/A 20089 Rozzano (MI). Ogni agenzia ha un proprio titolare ed è autonoma. Privacy policy | Policy utilizzo | Cookie policy